Logo
  >
Ureditev Centralne tehniške knjižnice / Central Technological Library in Ljubljana

projekt in realizacija / project and realization 1994

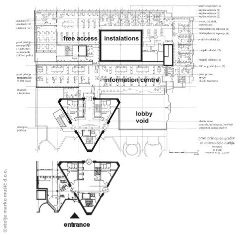
Centralna tehniška knjižnica se nahaja v prostorih stolpnice TR3 v Ljubljani, torej v znameniti kompoziciji objektov prominentnega slovenskega arhitekta Edvarda Ravnikarja. Projekt obsega ureditev ločenega vhoda za knjižnico, ki omogoča uporabnikom in zaposlenim neodvisnost od preostalih programov in dogodkov v stolpnici. V pritličju je tako urejen vstopni foaje, s spremljajočimi komunikacijami ter garderobo. V mezaninu so vhodni salon z velikim informacijskim in izposojevalnim pultom, prost pristop do monografij in revij, časopisna čitalnica, medknjižnična izposoja, specializirane enote iskanja gradiva, tiha čitalnica, osem študijskih sob itd. Zanimiv je konstanten vizualni stik z večnivojskim foajejem stolpnice, ki je omogočen z obsežno zasteklitvijo ob kateri je pozicioniran dolg pult za uporabnike. V sklopu umestitve knjižnice so bila urejena tudi zaprta skladišča. V 2. nadstropju pa uprava ter prostori za interno delo osebja. Posebnost, pri nas takrat malo poznana in redka, če sploh videna posebnost v arhitekturi knjižnic/javnih objektov, je umeščanje elementov iz naravnega lesa v svetlih tonih kot je naprimer belo lužen javor, ki prinese predvsem prostorom za uporabnike umirjenost, dostojanstvo ter ustrezno osvetljenost prostora, ki je sicer skoraj povsem brez dnevne svetlobe. Druga posebnost je tudi skrbna umestitev dolgih pultov, veliko število čitalniških mest in gradiva v prostem pristopu monografij in revij ter mnogo, posebej za to knjižnico razvitih detajlov, ki uporabniku omogočajo učinkovito uporabo gradiv npr. stojala za revije z izvlekom enot, posameznih čitalniških točk umeščenih znotraj knjižnih polic (browsing) in mnogo drugega. Umestitve kompleksnega javnega programa knjižnice je vseskozi vključevala raziskovanje dialoga z izjemno arhitekturo prof. Ravnikarja, prezentacije in spoštovanje njegove osrednje arhitekurne misli ter očuvanje premnogih za to stavbo karakterističnih materialov in detajlov, seveda ob investitorjevi predvideni enormni kapaciteti tako enot gradiva kot čitalniških mest ter števila uporabnikov.

The Central Technological Library (CTK) is located on the premises of the TR3 building in Ljubljana, the famous composition of buildings by prominent Slovenian architect Edvard Ravnikar. The project includes organization of a separate entrance for the library, which allows users and staff the independence from other programs and events in the tower. The ground floor comprises the entrance foyer, with accompanying communications and cloakroom. In the mezzanine entry lounge with a large information and a rental counter, free access to monographs and journals, newspaper reading room, interlibrary loans, specialized units, a quiet reading room, eight study rooms, etc.. are placed. Interesting is the constant visual contact with the multi-level foyer of the tower, which is enabled by the extensive glazing by the long desk for users located in the information centre. A part of the project was also establishing closed warehouse for library units. On the 2nd floor the administration and internal work spaces for staff are located. Speciality is in our vicinity little known and rare, if ever seen in the architecture of libraries / public buildings, the use from natural wood in bright, warm colors such as white stained maple, which bring calmness, dignity and adequate illumination of spaces deprived of daylight. Another peculiarity is careful placement of long counters, large numbers of reading places and materials in free access monographs and journals areas, and many, specially developed details which enable efficient use of library units, for example magazine racks with pull-out elements, the individual reading points situated within the bookshelves (for browsing) and many others. Placement of a complex public library programe presented constan exploration of dialogue with outstanding architecture of prof. Ravnikar, presentations and respect of his central architectural thought and protection of many for this building characteristic materials and details, of course by enabling the organization of the investor's enormous expected units capacity, reading places capacity and high number of visitors. [ ǀ ]