Logo
  >
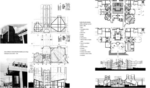
Univerzitetno središče v Skopju / University Centre in Skopje

...V tej prostorski urbanistični zasnovi Mušič ne pozablja na vnašanje arhitektonskih obeležij, ki z močno simboliko, vezano na makedonska duhovna izročila, odslikavajo pomen te izobraževalne ustanove, iz katere naj izžareva ljubezen do znanja.

Univerzitetni kampus sv. Cirila in Metoda sestavljajo filozofska, pravna in ekonomska fakulteta. V sklopu kompleksa je tudi rektorat, vendar so glavno prostorsko in vsebinsko obeležje zgradbe treh fakultet. Že zunanje oblike dajejo jasno prepoznavnost njihovih vsebin, ki so nedvoumno izražene s svojo obliko. Vhode v zgradbe fakultet prepoznamo po impresivno zasnovanih stopniščih, ki z drhtenjem senc in svetlobe okrog agore oblikujejo subtilni venec. Ta se razširi v amfiteatre s svojo prostorsko razsežnostjo in simbolnimi zaključki, med njimi horizontalno zleknjene vhodne vestibule, v vzdolžno zasnovane prostore, namenjene za učno in znanstveno dejavnost, ter v prečno postavljene trakte za akademsko osebje.
V splošno urbanistično kompozicijo se poleg treh fakultet vključujeta tudi knjižnici s svojimi čitalnicami, ki sta samostojna volumna v sklopu ekonomske in pravne fakultete. Osrednji programi treh fakultet oblikujejo agoro kot glavno arhitektonsko komponento, ki daje poseben značaj celotnemu kompleksu. Na podaljšani del agore je kot zaključek osrednjega predela univerzitetnega središča postavljena zgradba rektorata...

Zleknjena kompozicija cerkve sv. Klementa v Ohridu se postopno, vse bolj kipeče vzpenja proti najvišjemu, krožno izoblikovanemu poudarku. Podobno je umirjena horizontalna struktura univerzitetnega tkiva, iz katere se prav tako vzpenjajo posamezni pomenski poudarki...

Mušič se je pred začetkom postopka načrtovanja univerzitetnega središča posvetil preučevanju tradicionalne makedonske arhitekture. Navdihovalo ga je njeno bogastvo, saj je kot arhitekt, ki v svojem ustvarjanju kaže posebno naklonjenost tradiciji in simbolom, v njej našel njene resnične vrednosti...

…In this spatial urban design Mušič does not forget to insert architectural monuments with a strong symbolism that are attached to the Macedonian spiritual tradition with a strong symbolism, reflecting the importance of these educational institution from which radiats the love of knowledge.

The Ss. Cyril and Methodius University Centre in Skopje consists of Philosophical, Legal and Economy faculties. Within the complex is the Rector's office, but the main spatial and content core consists of the buildings of the three faculties. External forms themselves provide clear visibility of their content, clearly expressed by itheir shape. The entrances to the building faculties are recognized by the impressive designed staircases with trembling shadows and light that create a subtle wreath around the agora. This expands to the amphitheatres with their spatial dimension and symbolic conclusions, between them horizontally stretched entry vestibules, the longitudinaly designed rooms intended for educational and scientific activities, and the perpendicular wings for academic staff.
Into the general, urban composition in addition to the three faculties the libraries with its reading rooms are included, which are independent volumes within the Economic and Legal faculties. The main programs of the three faculties form agora as the main architectural component that gives the special character of the entire complex. On the extended part of the agora the Rectorate building is located as the closure of the central area of the university center...

Stretched composition of the church of St. Clement in Ohrid is gradually, increasingly climbing towards the highest, the circular shaped emphasis. Similarly moderate is the horizontal structure of the university tissue from which there are also rising each semantic accents...

Prior to the beginning of the planning process of the university centre Mušič dedicated himself to the study of traditional Macedonian architecture. He was inspired by the Macedonian architectural, cultural richness, because he is an architect whose work shows a special preference for tradition and symbols, he found there its true values...

monografija / monograph
Besedilo iz monografije Georgi Konstantinovski: Univerzitetno središče v Skopju / Text from monograph Georgi Konstantinovski: University Centre in Skopje, ISBN 978-961-268-027-5 (SAZU)

članek / article
»UNIVERZITETNO SREDIŠČE V SKOPJU JE ENA NAJVEČJIH ZGRAJENIH ARHITEKTUR KAKŠNEGA SLOVENSKEGA ARHITEKTA ZUNAJ SLOVENIJE.«
članek »NEMO PROPHETA IN PATRIA«
Marko Cotič, 24. 03. 2014, Pogledi, let. 5, št. 5, 12. marec 2014 http://www.pogledi.si/knjiga/nemo-propheta-patria
[ ǀ ]